
Information
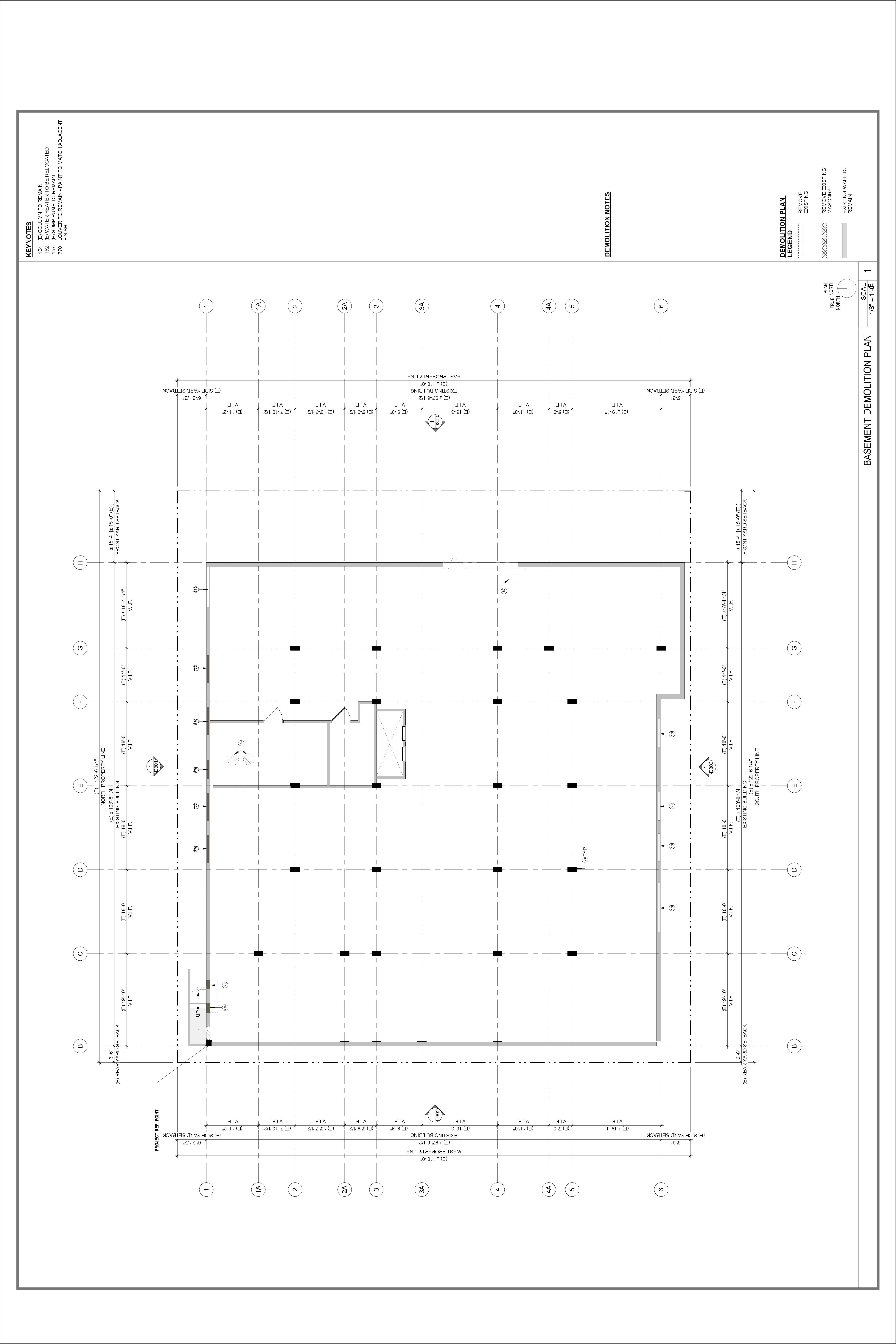
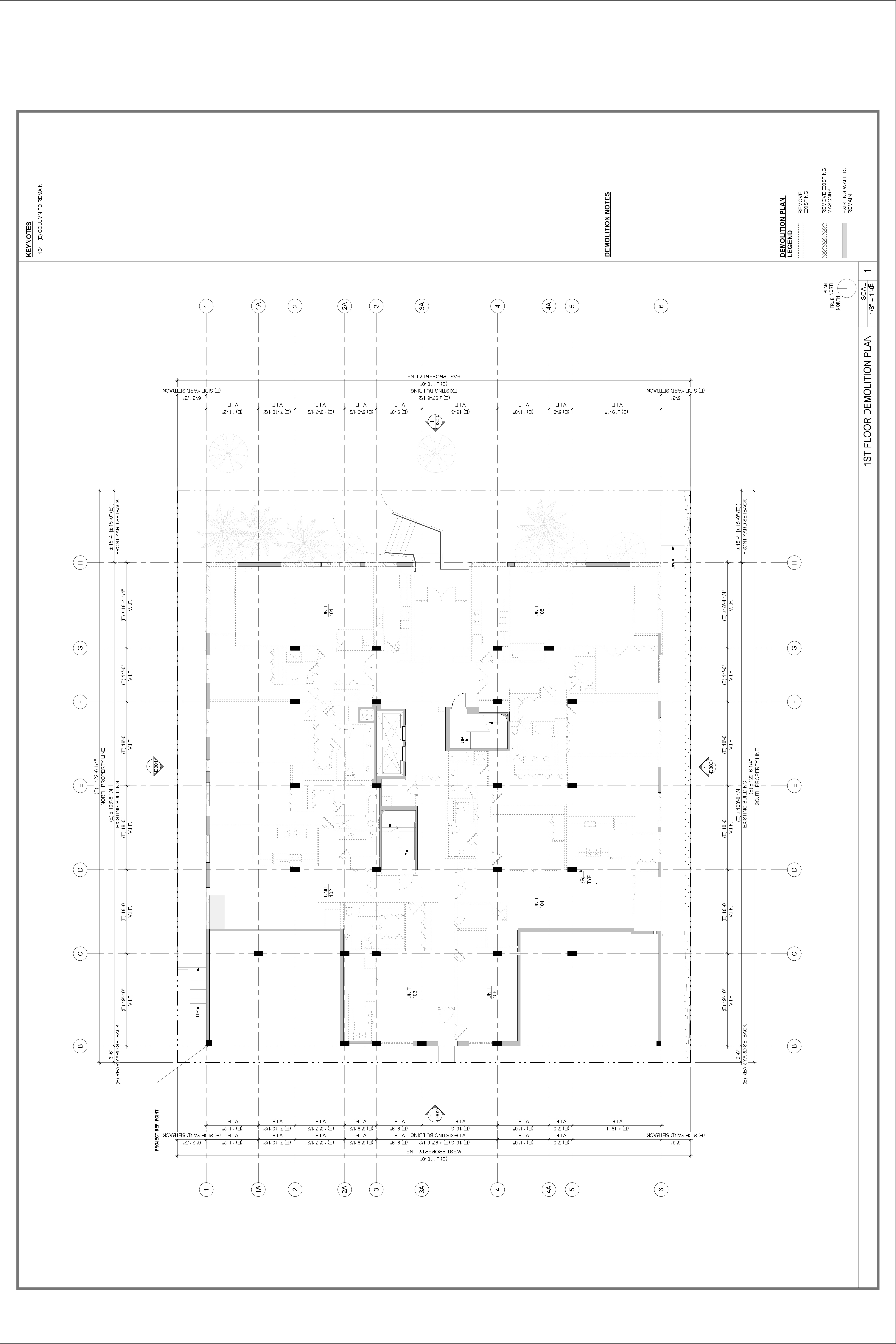
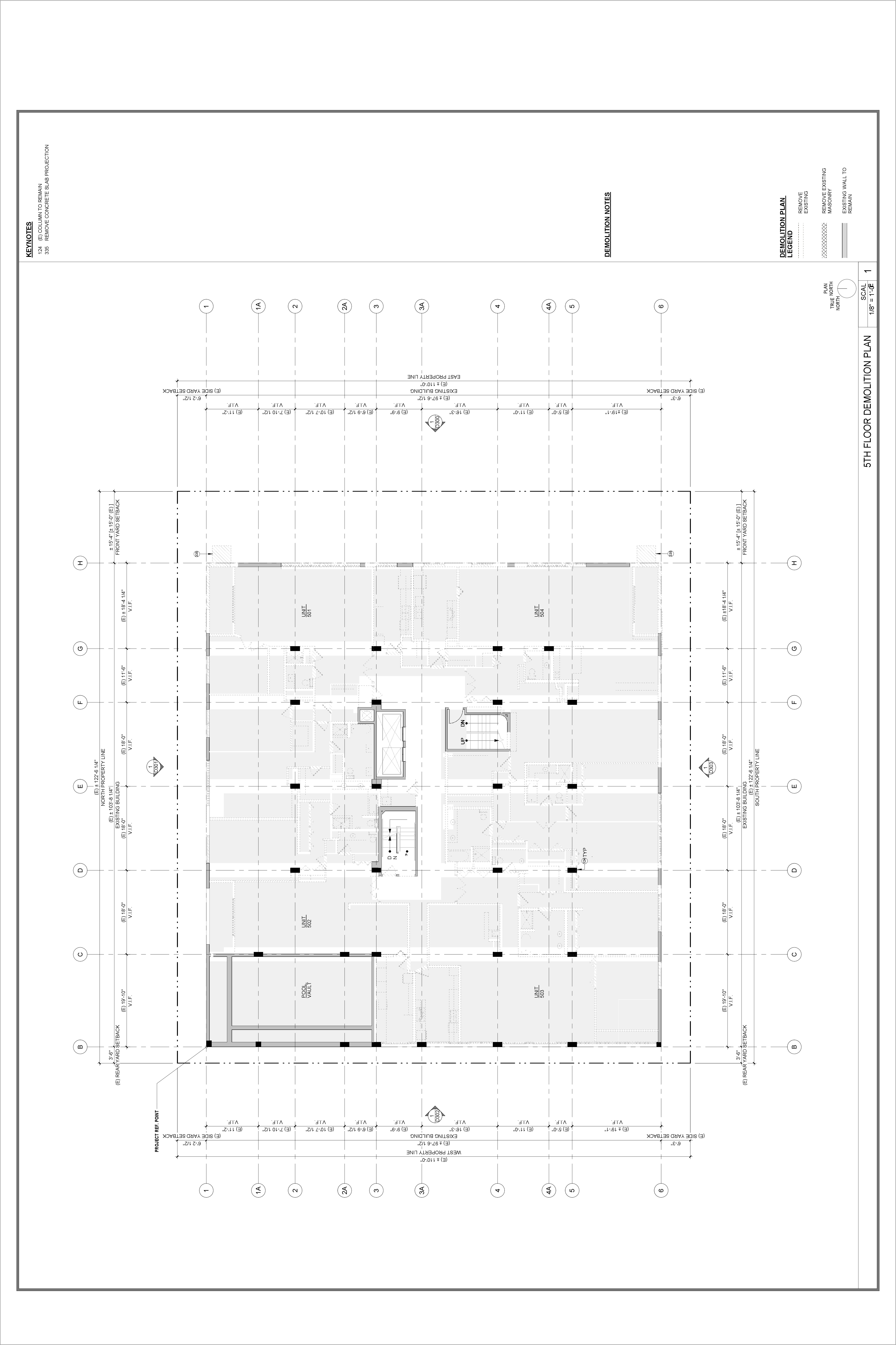
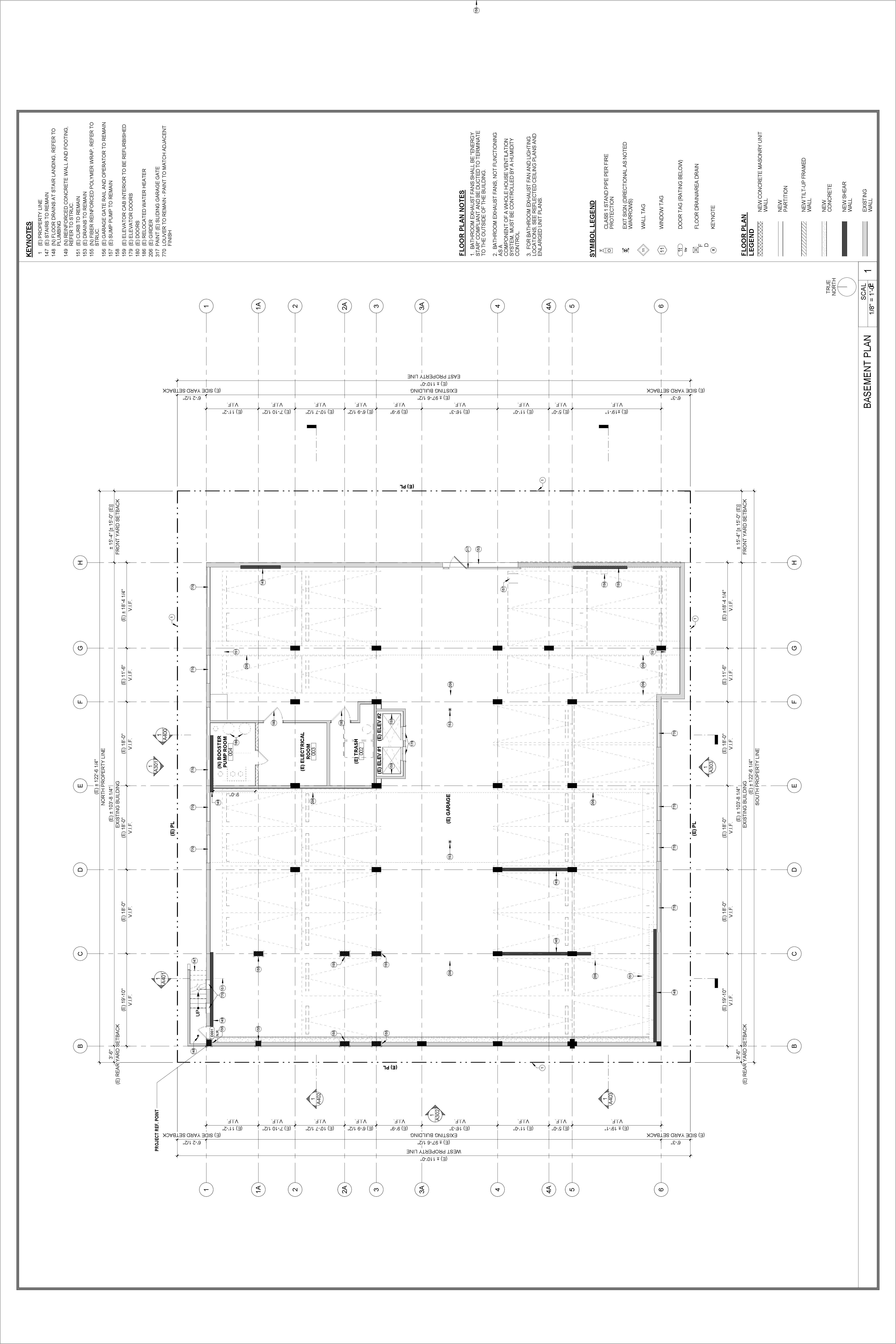
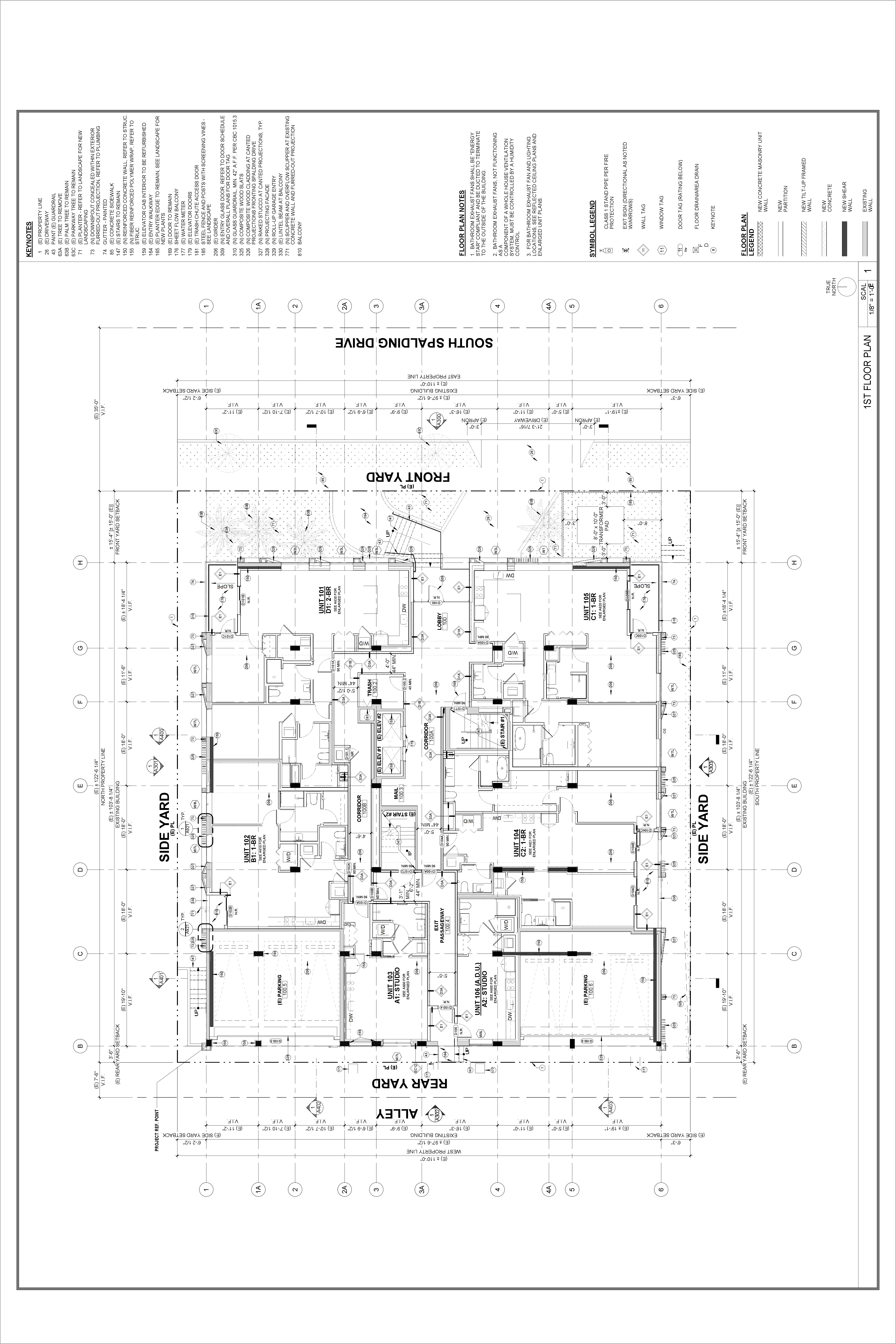
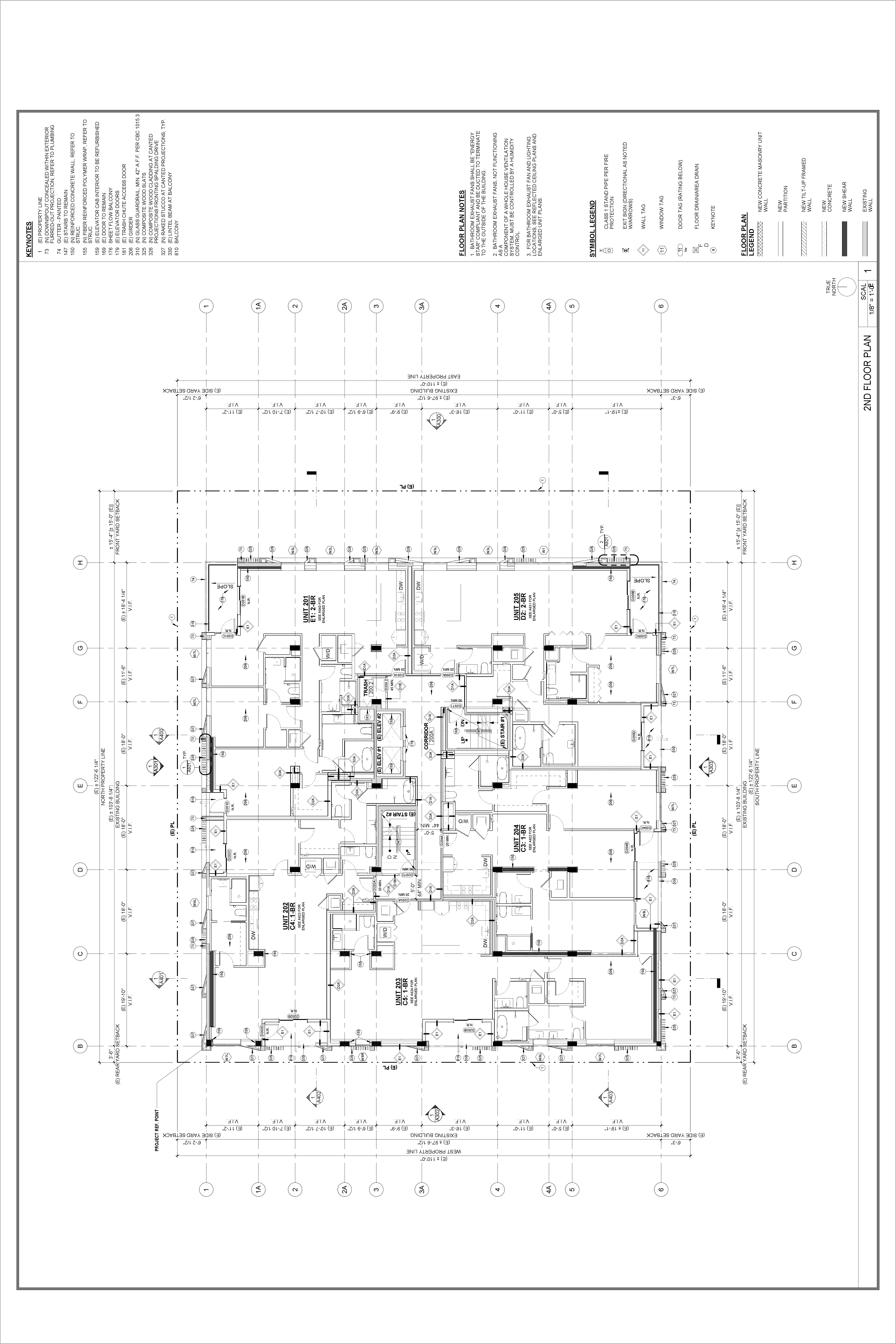
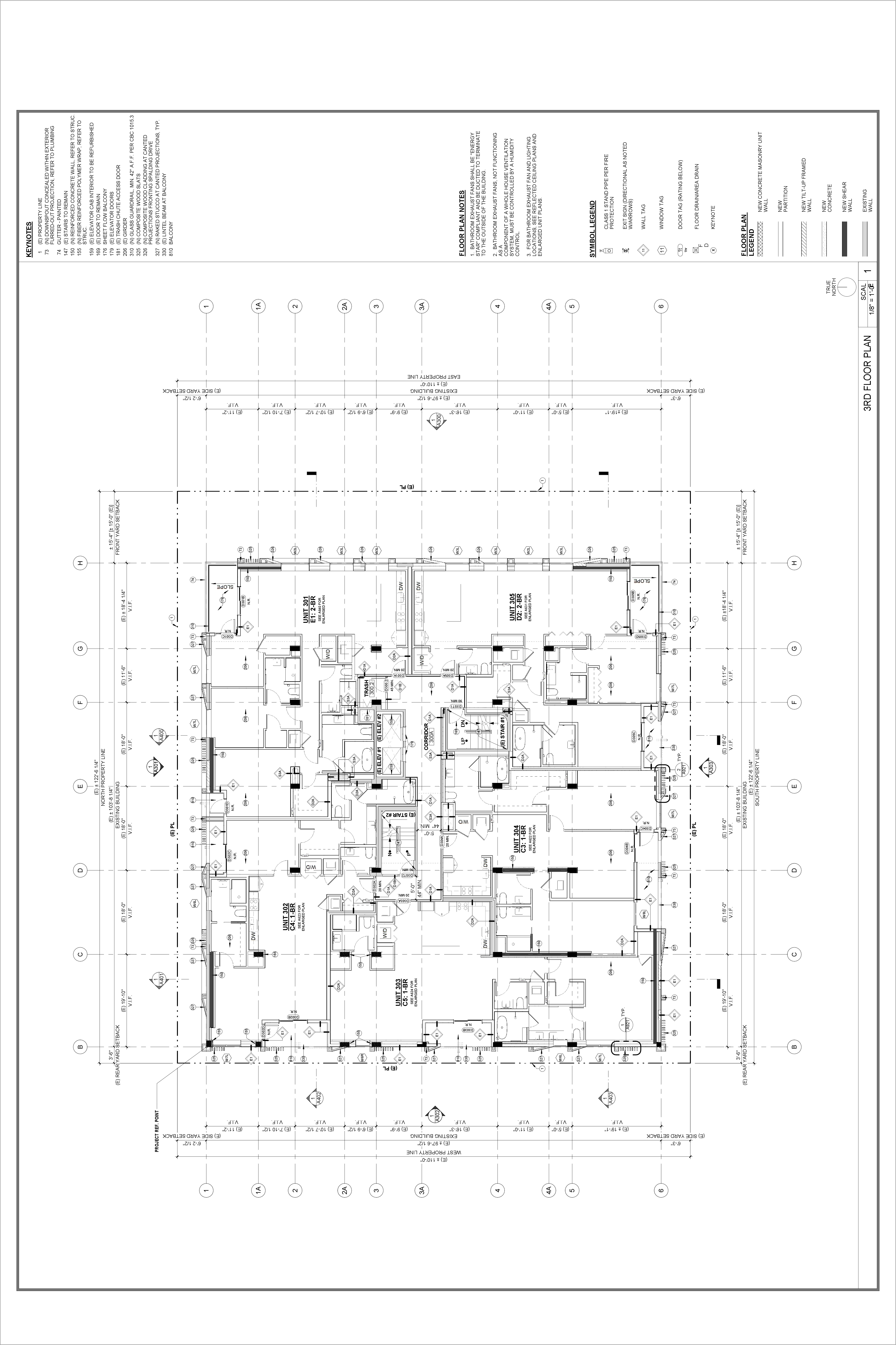
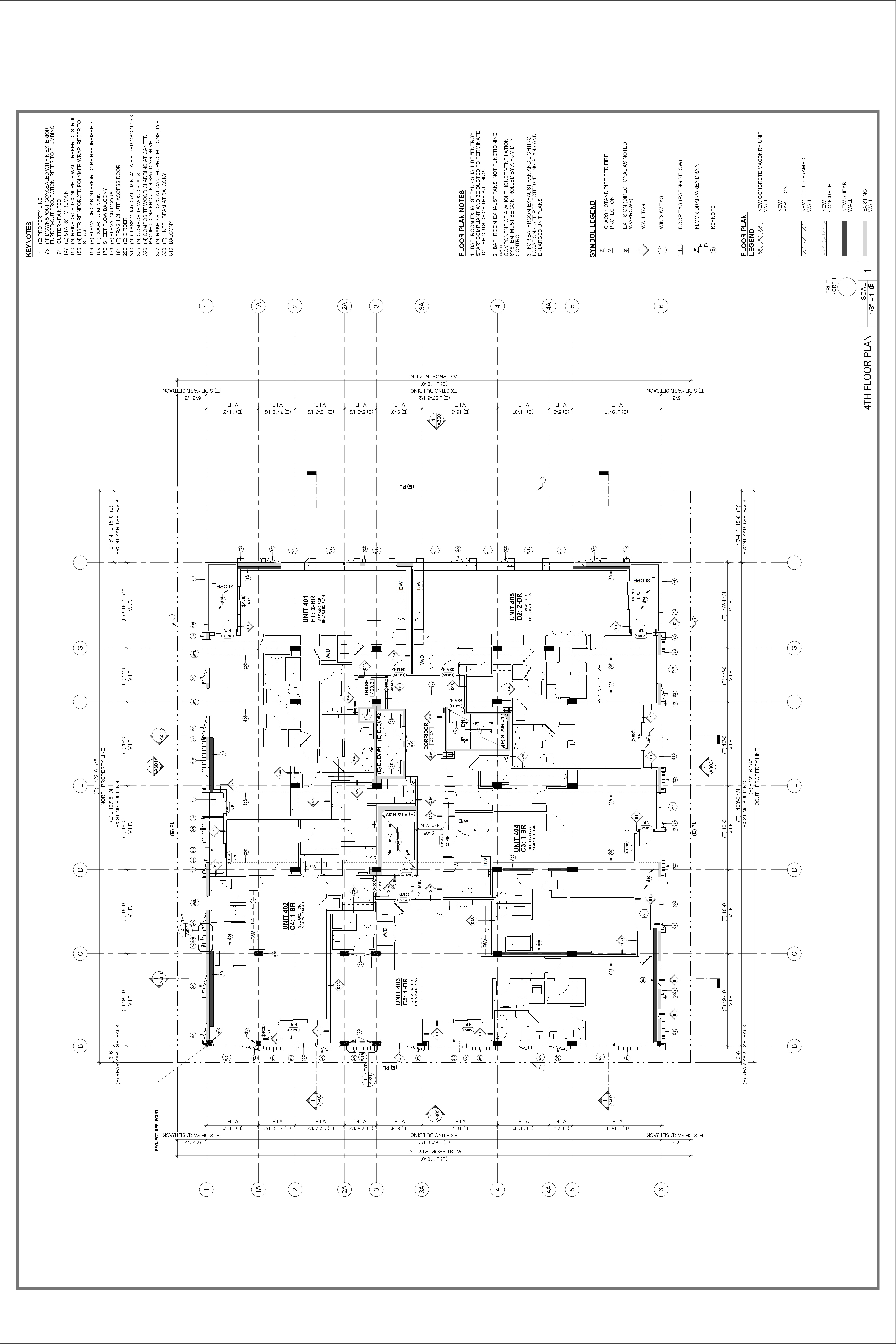
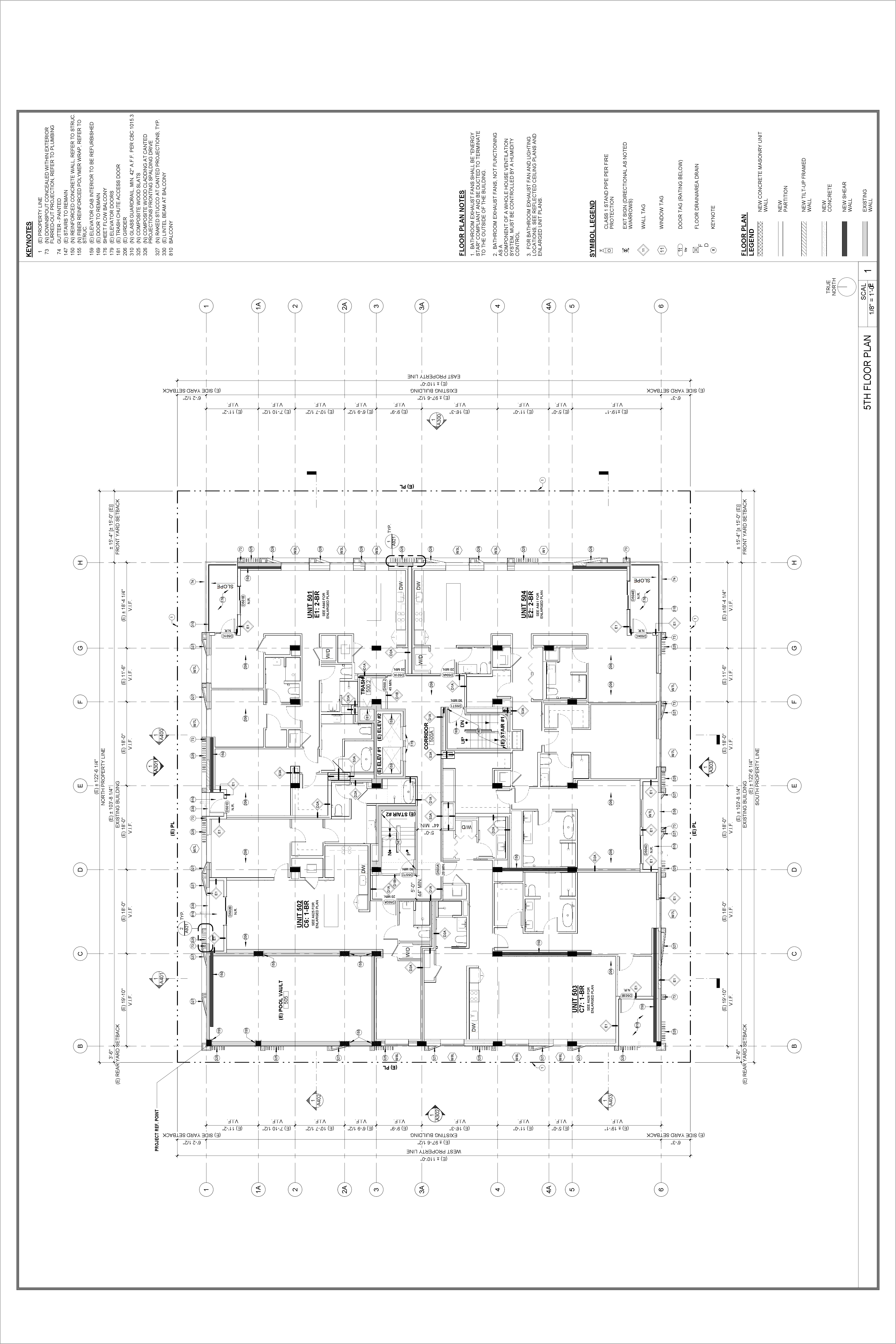
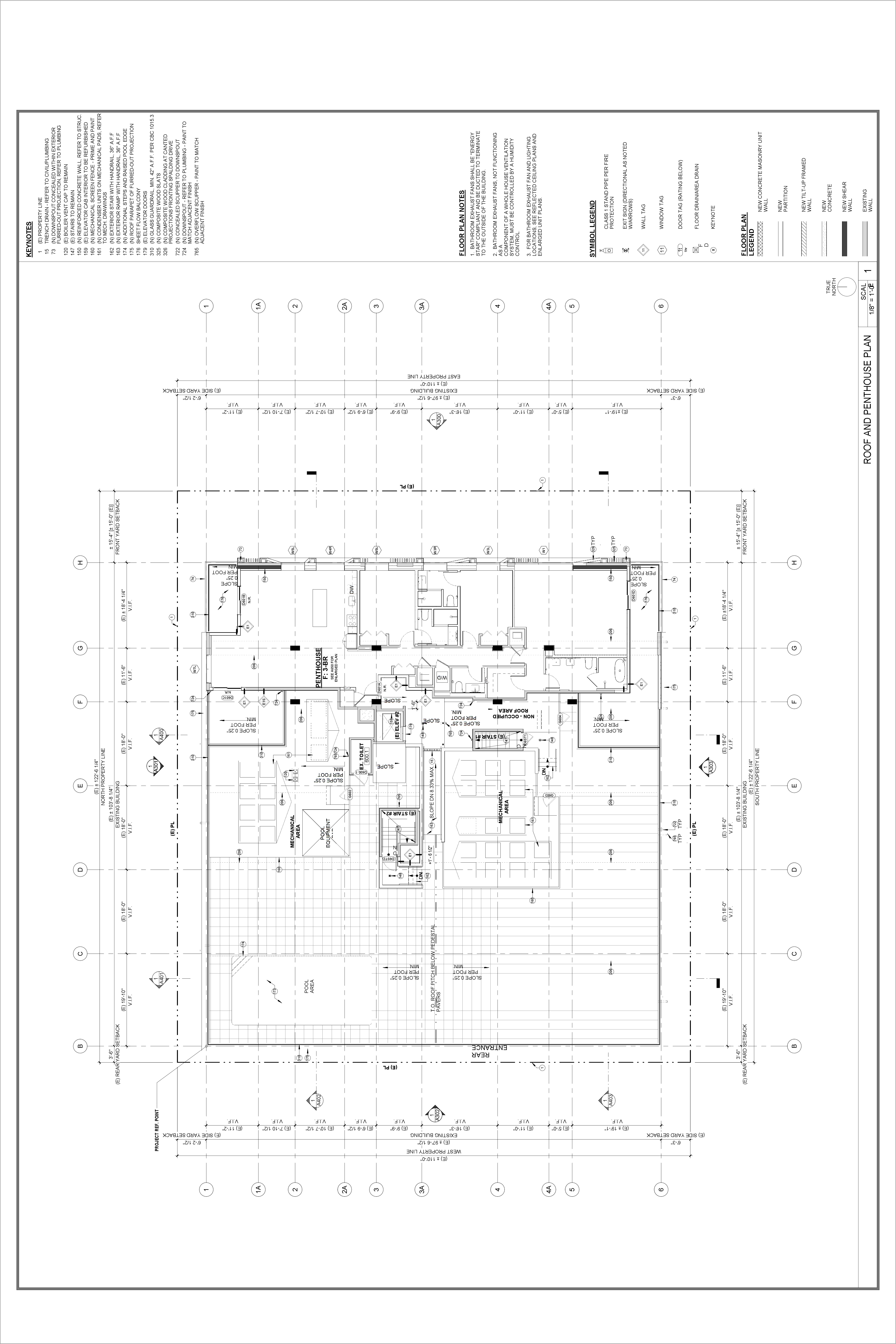
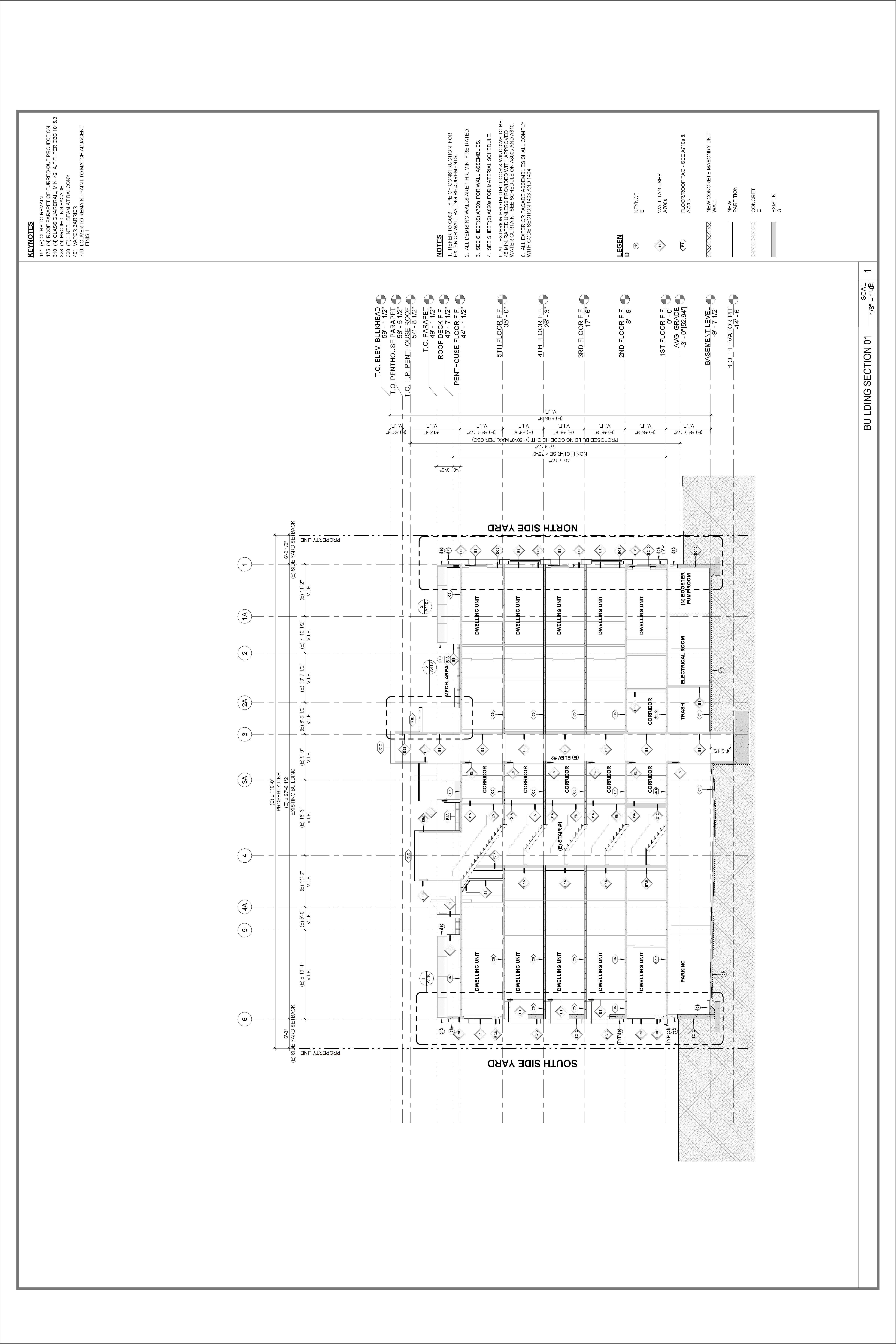
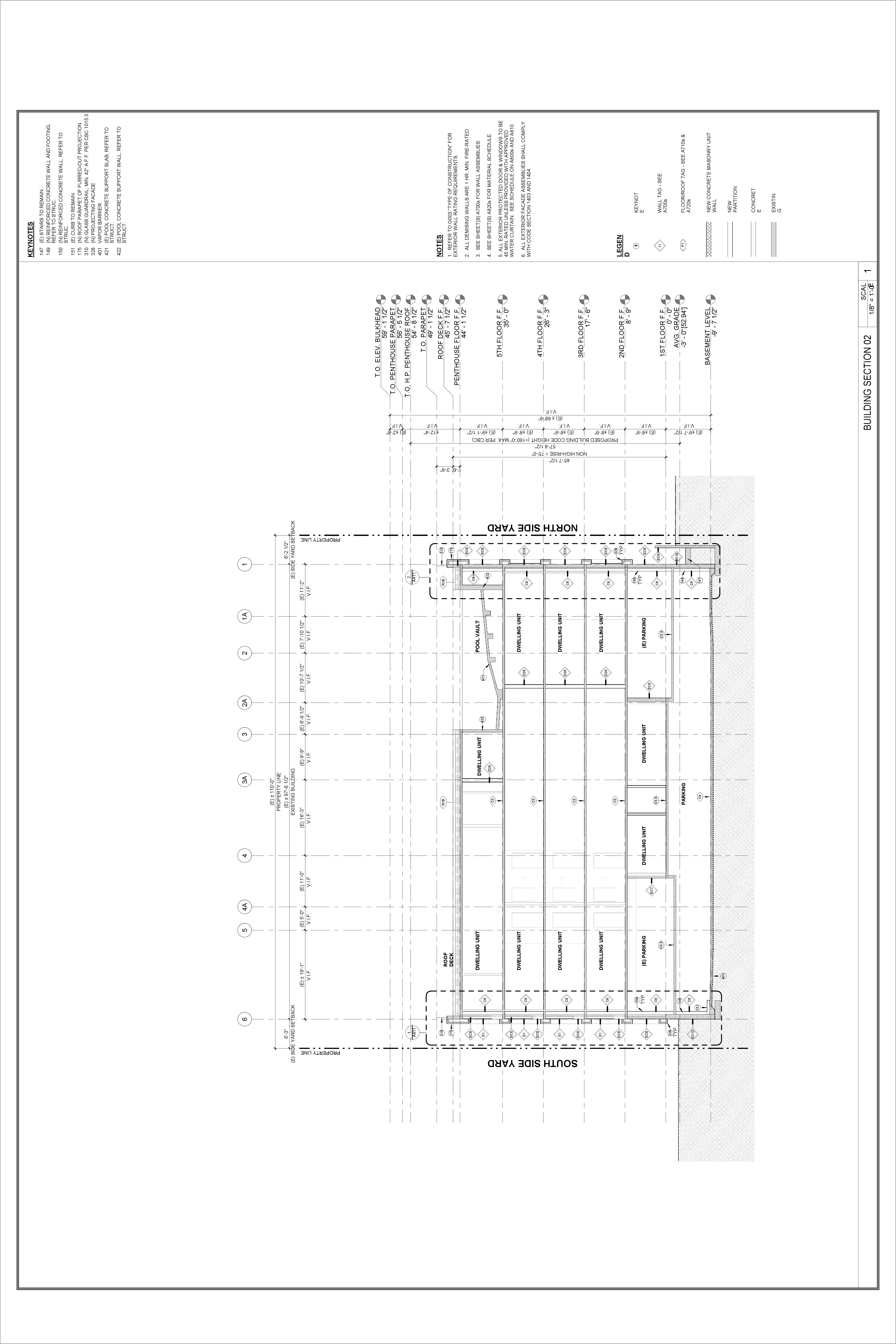
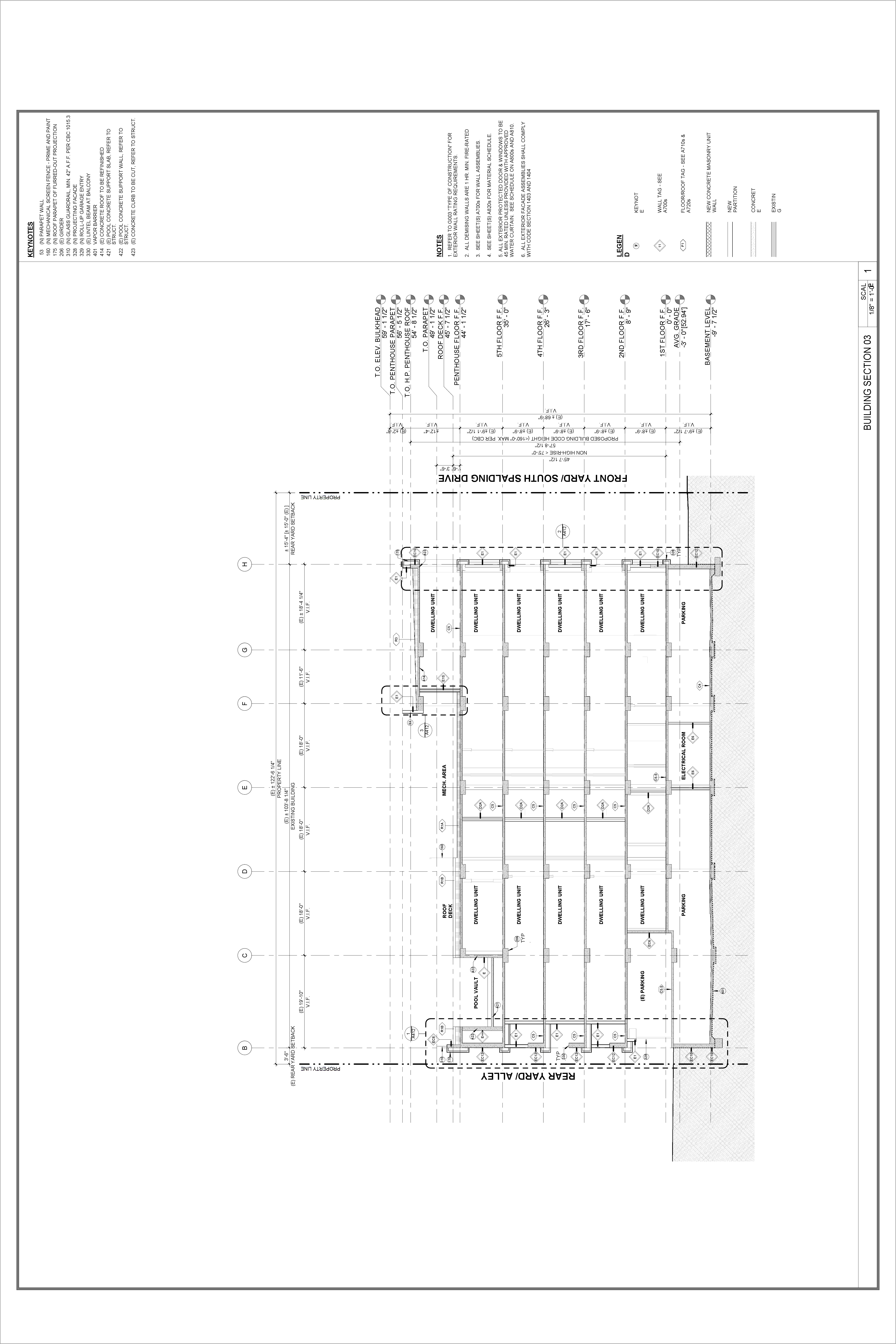
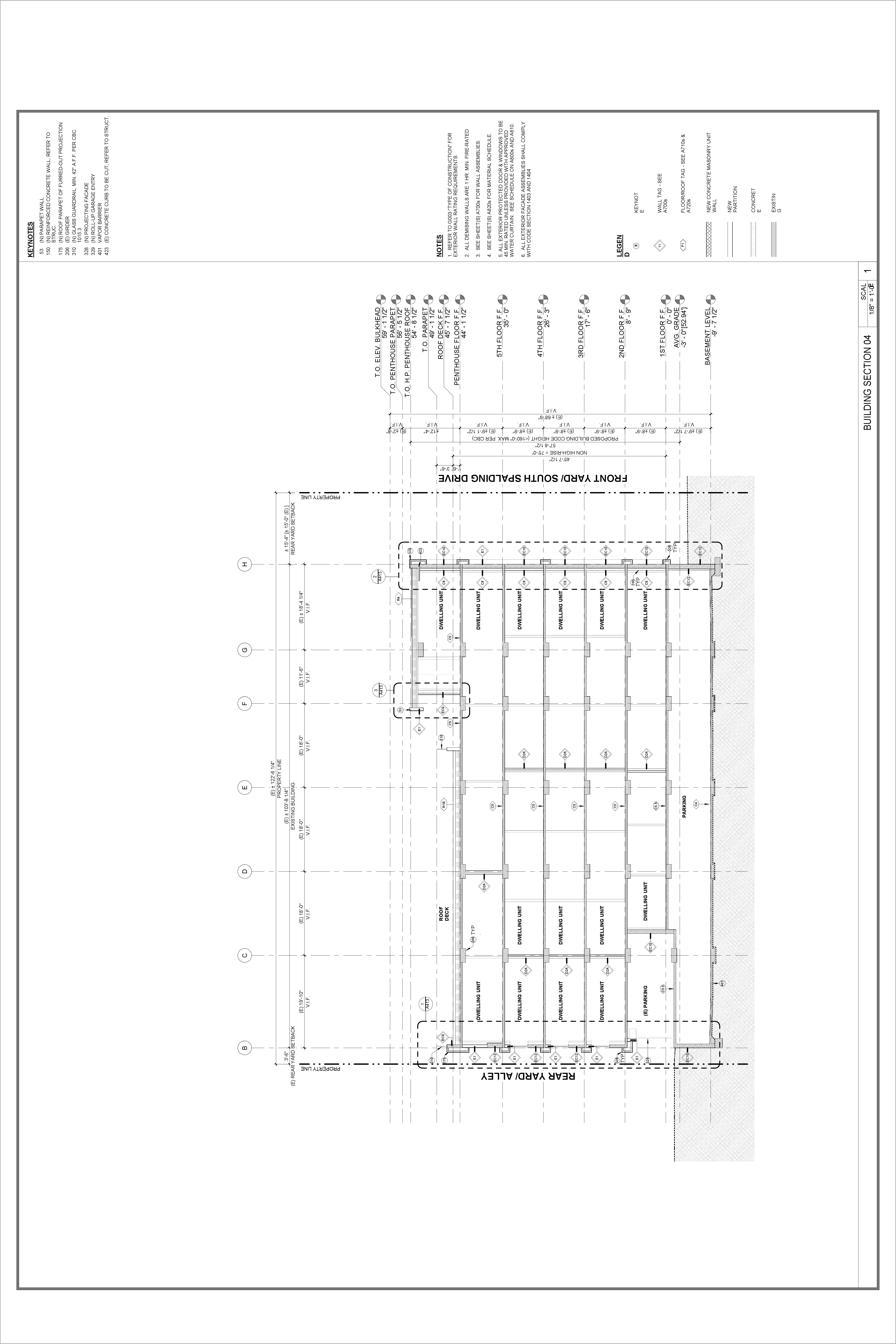
Remodel of existing 25 unit apartment building including conversion of existing storage to one a.d.u. For a total of 26 units. Scope includes: Facade remodel with new cladding, waterproofing, windows, balcony railings as well as interior remodel of residential levels, and remodel of the existing roof deck and pool. No changes proposed to use, occupancy, or parking. No additional habitable rooms proposed in the remodel of the existing 25 units. Portion of existing penthouse parapet height increase of 2'-6".
User : everyone, Location : 245 South Spalding Drive, Beverly Hills, Ca 90212 Area : 13,475 SF

Plan

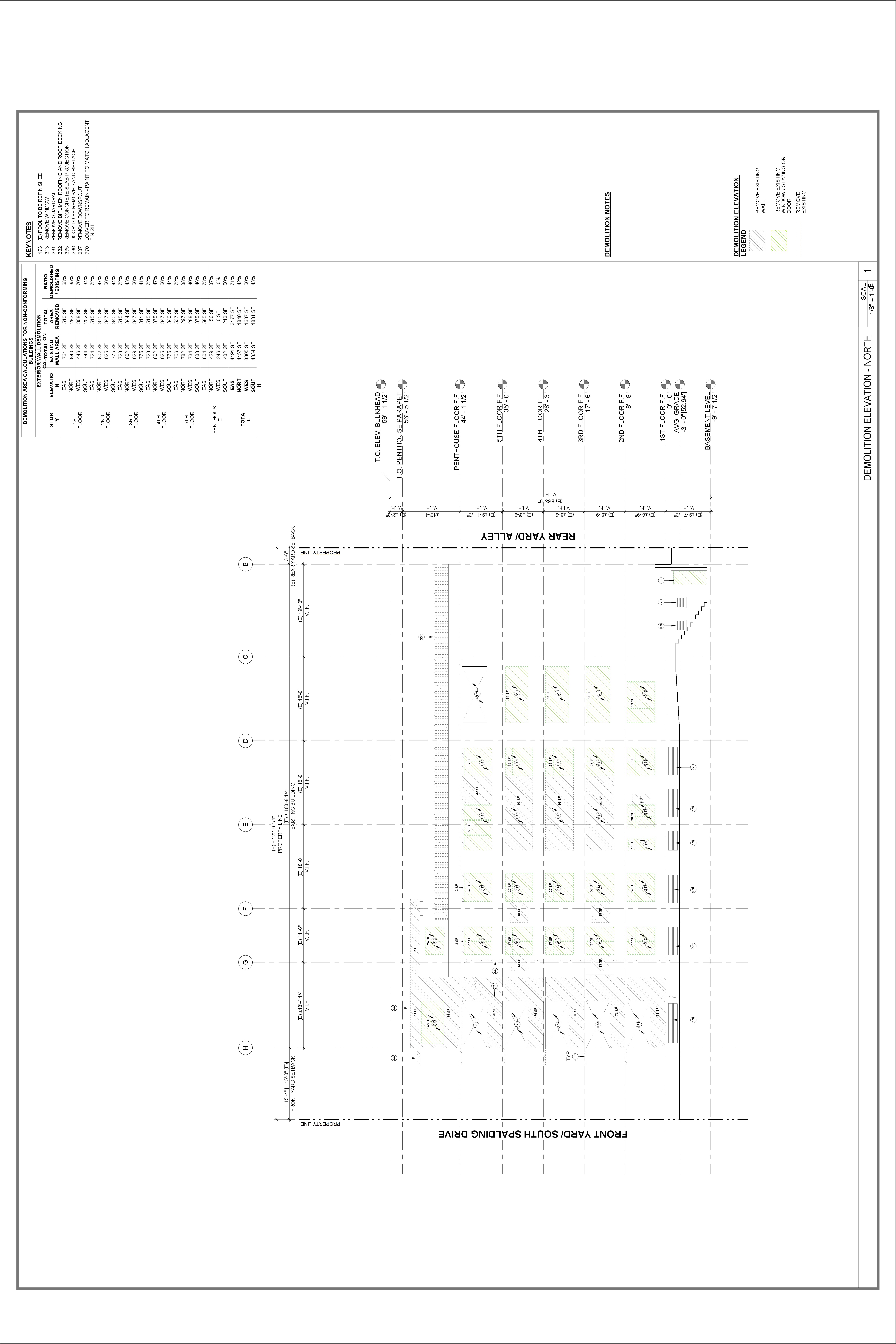
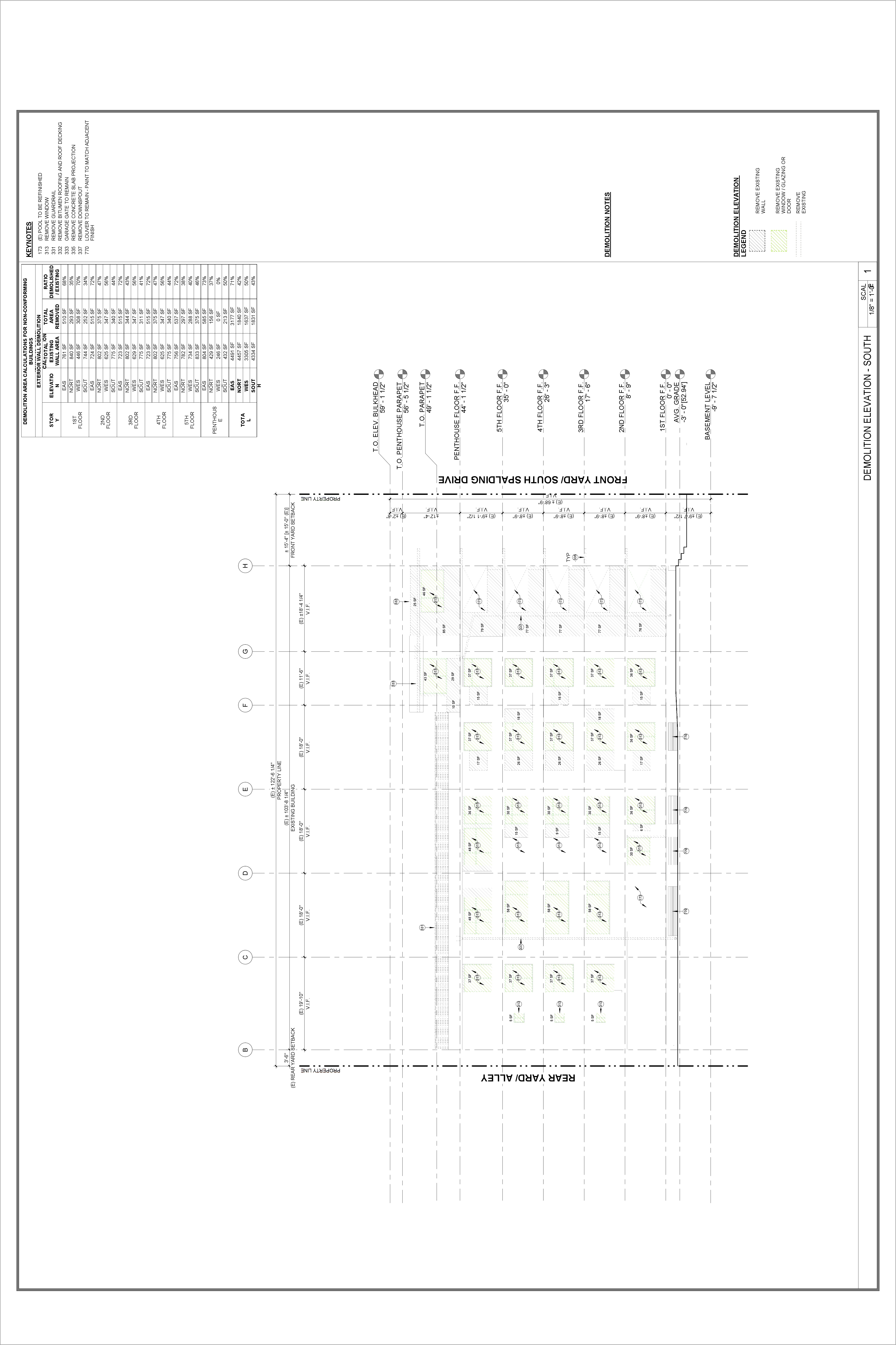
Demolition








Proposed








Elevation
Demolition




Proposed




Sections




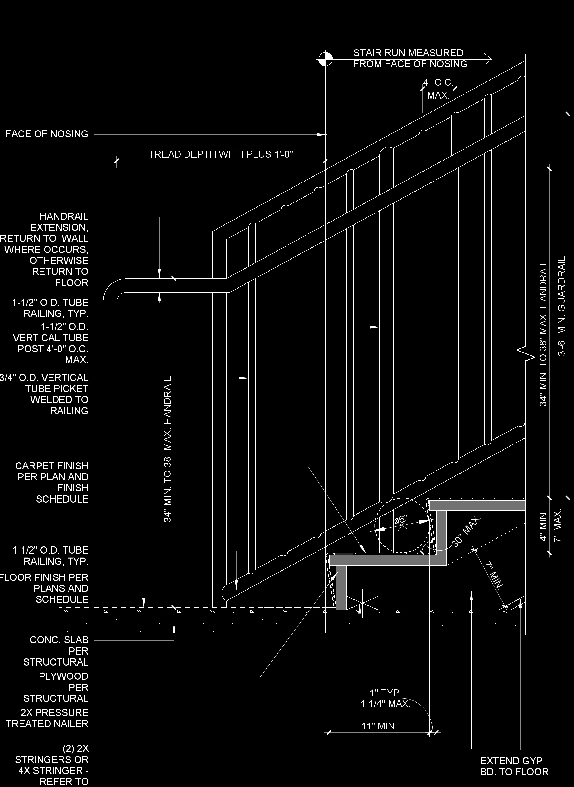
Stair details


