
Introduction
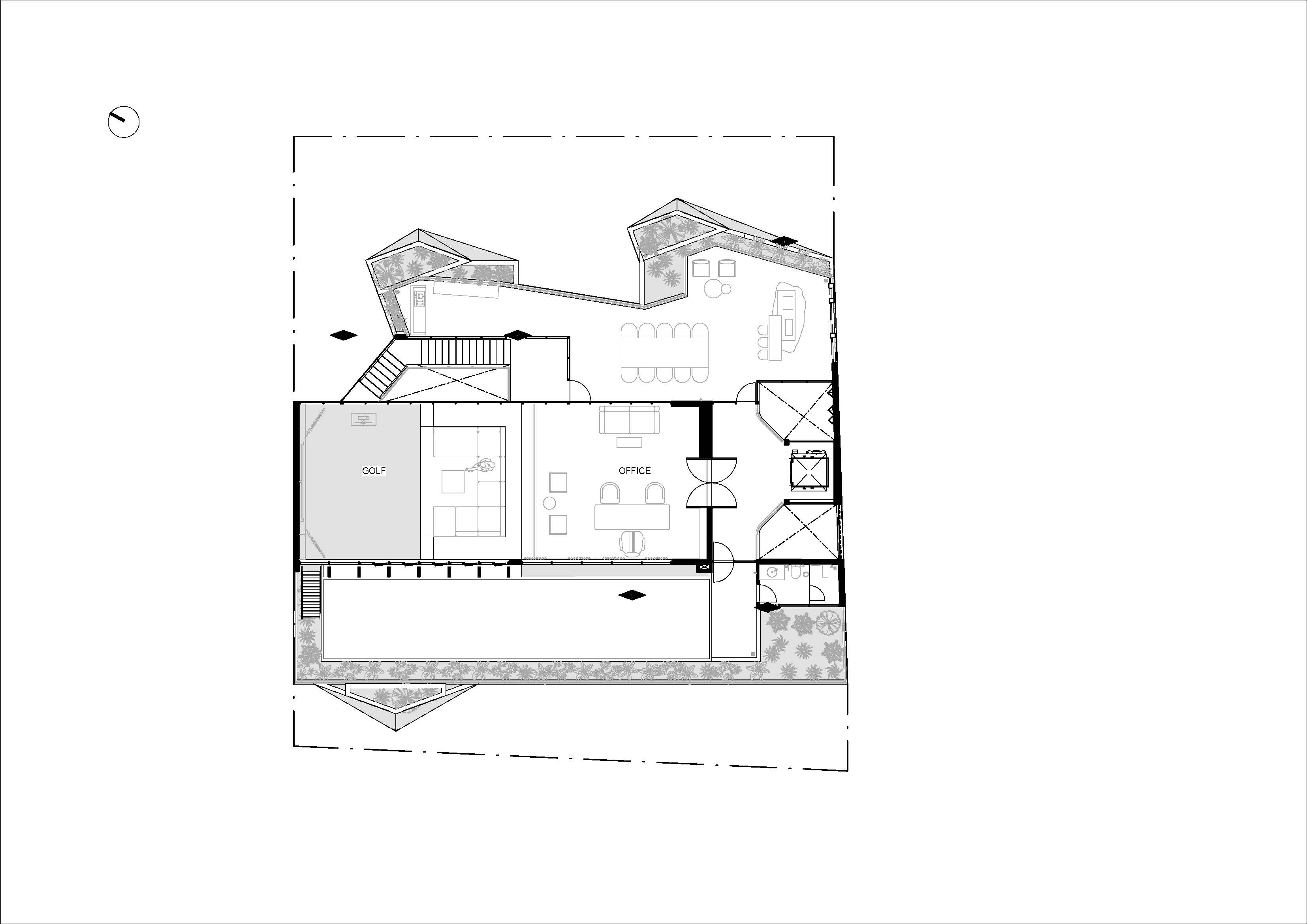
Situated in a coastal city in Vietnam and inspired by the homeowner's vision of a green-filled living space, our design revolves around the fusion of three key elements: living space, greenery, and light. These components harmoniously weave through every aspect of the structure, from architectural aesthetics to interior spaces. Additional features like fish ponds and green elements act as a protective "envelope," mitigating noise and regulating the climate within the house.
User| everyone Location| Phu Yen Area| 1500m2
Photos




3D Model BIM


Plans





