[0] Asset CDN

User| everyone Location| Da Lat Area| 500m2
Introduction
Discover a sustainable haven in the heart of Da Lat with our uniquely designed homestay. Built with a commitment to both durability and nature, the main structure features eco-friendly concrete adorned with intricate patterns inspired by the beauty of the local environment. Embracing green practices, the retreat offers a serene escape surrounded by lush greenery, providing a perfect blend of modern design and natural tranquility.
Photos
[1] Asset CDN

[2] Asset CDN

[3] Asset CDN

[4] Asset CDN

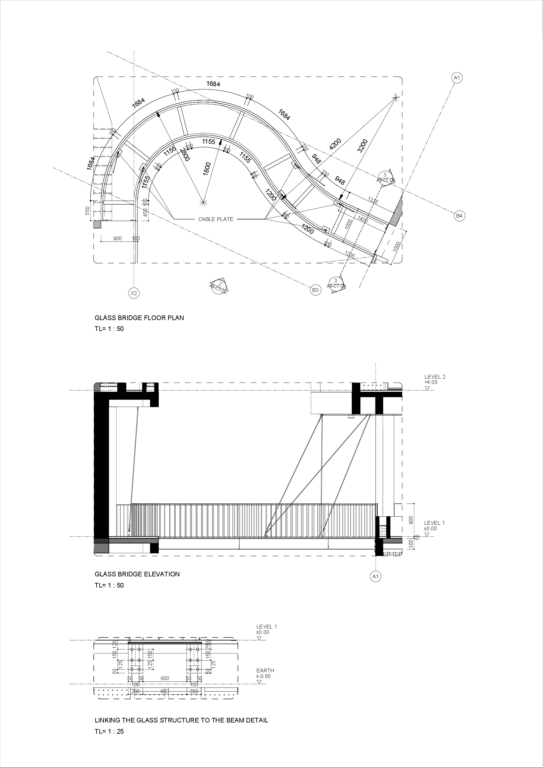
The project stands out due to its distinctive structure, incorporating a steel structural frame, glass, and tension bars. This combination lends a fusion of rural and modern aesthetics to the overall design.
[5] Asset CDN

[6] Asset CDN

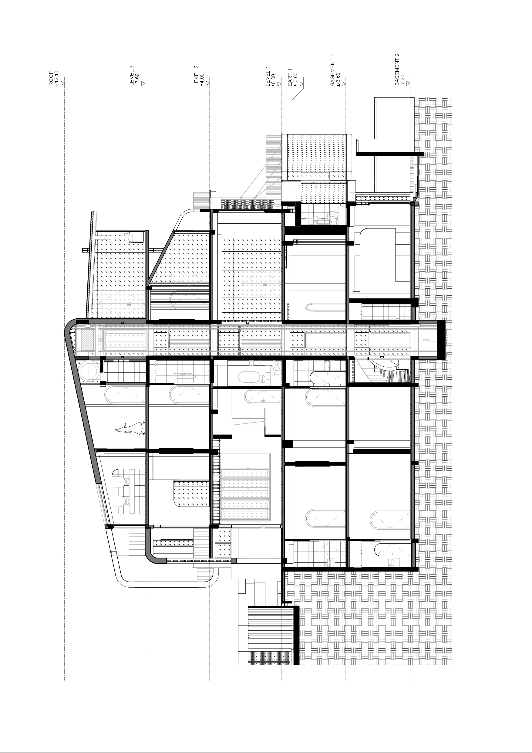
BASEMENT
[7] Asset CDN

[8] Asset CDN

[9] Asset CDN

3D Model BIM
[10] Asset CDN

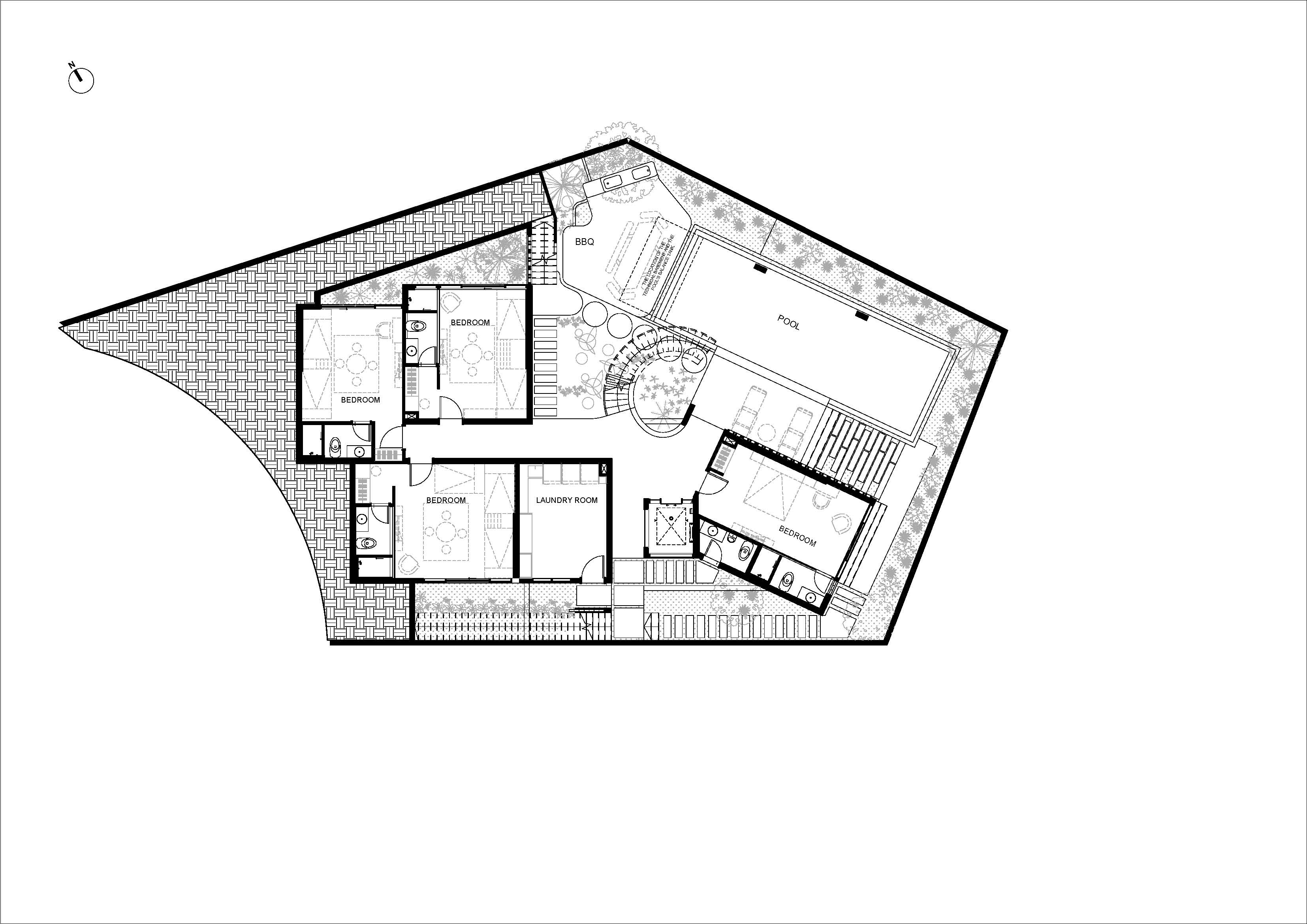
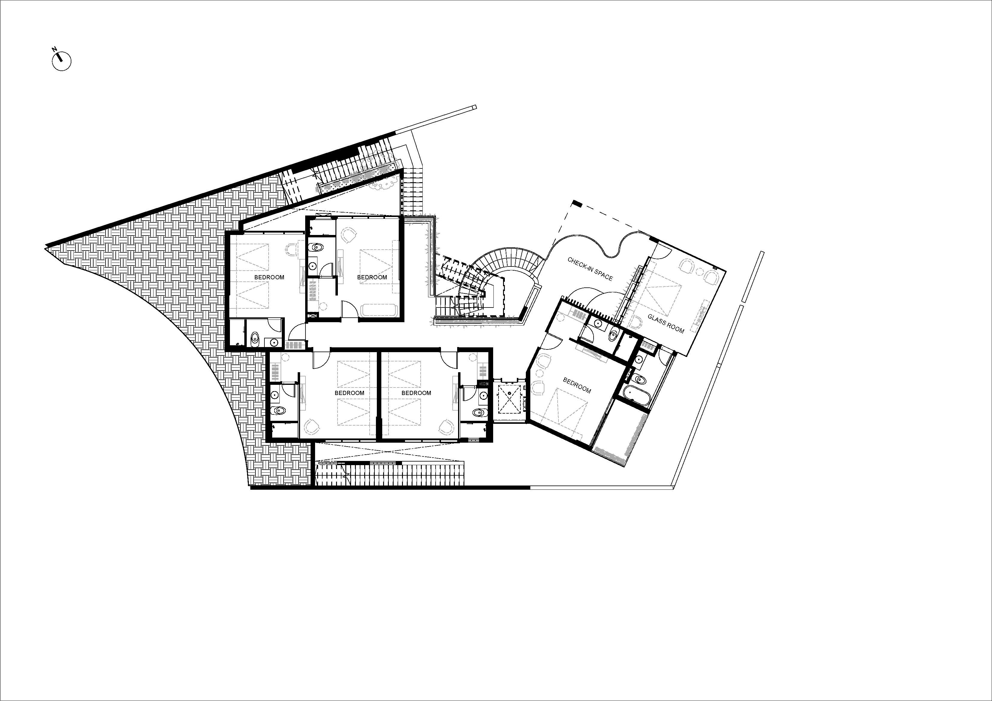
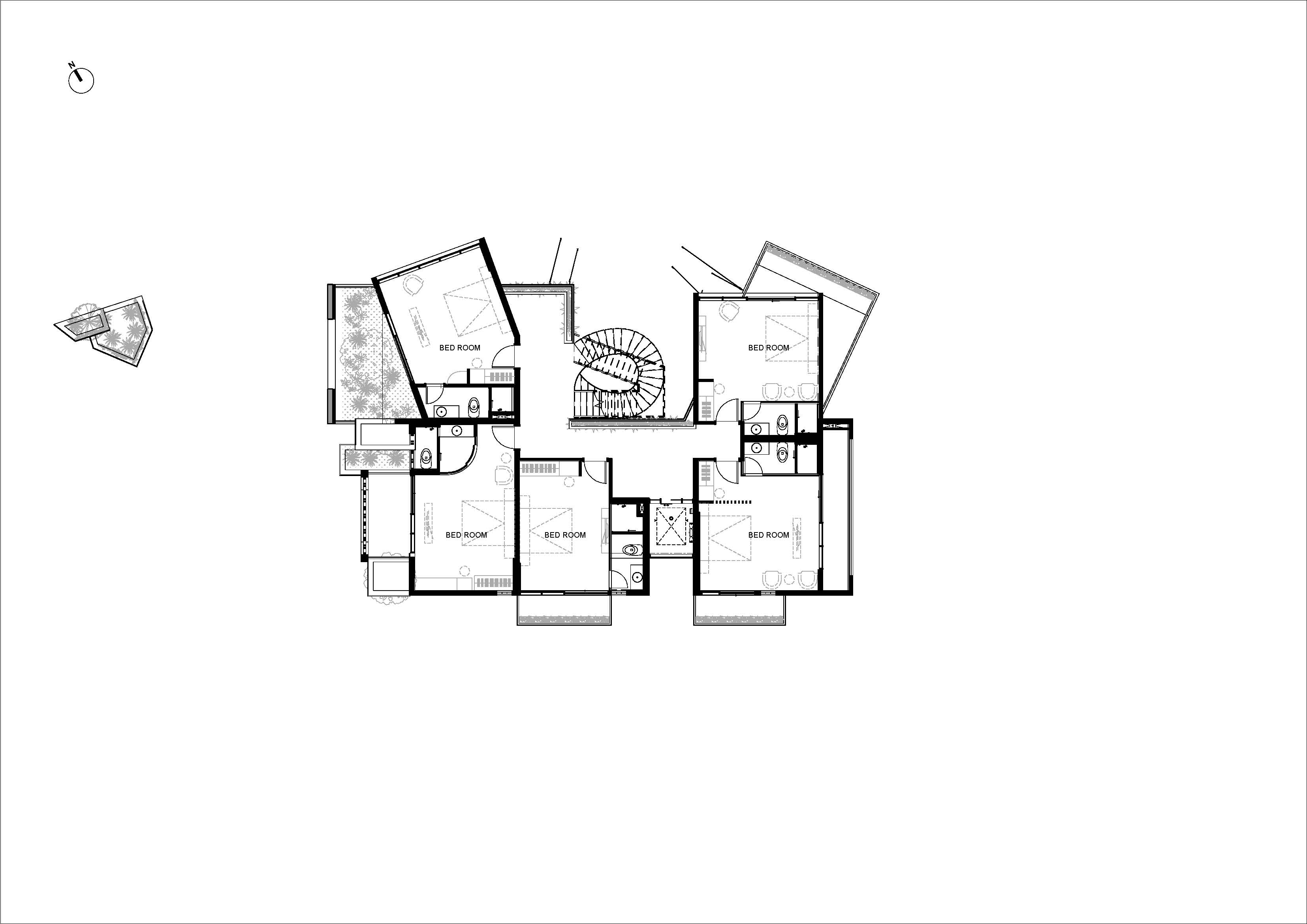
Plans
[11] Asset CDN

[12] Asset CDN

[13] Asset CDN

[14] Asset CDN

[15] Asset CDN

[16] Asset CDN

[17] Asset CDN
